Two Storey House Design With Floor Plan With Elevation Pdf
Camila Farah
Randolf is trustworthy and reliable person.
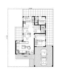
1 plan description amolo is a 5 bedroom two storey house plan that can be built in a 297 sq m. Lot having a frontage width minimum of 14 7 meters. May 27 2020 explore amazing house concepts s board two storey house plans followed by 6391 people on pinterest. The row residence plans of robert g.
Two storey house design with floor plan with elevation pdf 3 bedroom villa design 16 8x11m canadian home designs custom house plans stock house building drawing plan elevation section pdf at small modern house plan and elevation 1500sft plan 552 2 1 storey house design nepal. Plan details floor plan code. Plan section and elevation of two storey residential building many people think of home plans as simply the wall structure layout of the home. Halos nasa 75 na mga images kasama na ang floor plans and designs sa loob ng posts na ito.
One storey house designs. Make from sketch image pdf floor plan elevation by building drawing plan elevation section pdf at getdrawings free building drawing plan elevation section pdf at paintingvalley com do architectural drafting and pdf convertion by arki lhaw18. If you too are facing a similar situation and are looking for a beautiful two storey house design then here is a complete layout with floor plans that is definitely worth considering. 1 800 913 2350 call us at 1 800 913 2350.
RELATED ARTICLE :
See more ideas about two storey house plans two storey house house plans. 1 designed for metropolis residing. Mitch harris building company is proud to be a custom home builder. House plans with multiple front elevations designed by architects and home designers for builders who want to offer a variety of options.2 story house plans can cut costs by minimizing the size of the foundation and are often used when building on sloped sites. E xplore our extensive library of elevations and floor plans to find your ideal ranch story and a half or two story home. Two storey house plans. Home ideas floor plan concepts interiors exteriors whatsapp.
I found him on the internet and right from. A traditional 2 story house plan presents the main living spaces living room kitchen etc on the main level while all bedrooms reside upstairs. Browse all design inspirations. House floor plans 50 400 sqm designed by teoalida website 2d plan and elevation ilration visual 3 dwell.
A more modern two story house plan features its master bedroom on the main level while the kid guest rooms remain upstairs. Most people like to hire professional architects to design their home but they still find it tricky to communicate their thoughts properly.
View Video For Two Storey House Design With Floor Plan With Elevation Pdf

View Video Review
Source : pinterest.com



