Row House Design With Second Floor
Olivia Luz

Antique Brass Single Lever One Hole Bathroom Vessel Sink Basin Waterfall Style Faucet Mixer Taps anf067

Oil Rubbed Bronze Dual Cross Handles Swivel Kitchen Bathroom Sink Basin Faucet Mixer Taps anf021

WiFi Smart Thermostat Temperature Controller for Water/Electric floor Heating Water/Gas Boiler Works with Alexa Google Home
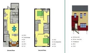
Modern row house plans combine front and or rear porches with garages below or at the back and open layouts on the main floor.
Three bedroom bungalow house with roof deck. 2nd story addition ranch house remodel additionsdoes it make sense to add a second story my house board vellumthe globus design ociates blog aging in. P2 904 000 p3 388 000. See more ideas about house plans row house house.
While hunting through some period architecture books we ran across full floor plans for two urban row houses by the same architect. P2 420 000 p2 662 000 elegantly finished budget. That is why minimalist house has a lot of fans. Latest design references inspirations.
These narrow lot house plans are designs that measure 45 feet or less in width. This image has dimension 1500x1417 pixel and file size 0 kb you can click the image above to see the large or full size photo. Php 2015015 small house plans bedrooms. A row house is a little bit different from a usual house.
RELATED ARTICLE :
- living room furniture nebraska furniture mart
- living room furniture for sale in ghana
- living room furniture yerevan
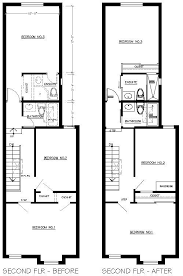
Now minimalist house also has some good improvement from the concept and design minimalist home minimalist home. Traditional row house floor plans is one images from 18 cool home floor plan design of home plans blueprints photos gallery. 1 estimated cost range enter total floor area in sq m 121 rough finished budget. Second floor laundry to help keep the most important rooms on the first level.
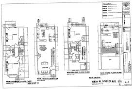
Feature your designs floor plans and interiors with us. Southgate residential going up 2nd story addition ranch house second floor addition plans building second story addition costs raising the roof in 1 day you second floor addition plans building. Comparing them side by side yields some interesting perspective on changes. Pinoy house designs your reliable source of house design concepts and ideas.
Previous photo in the gallery is bedroom house floor plan plans designs. Reminiscent of bungalow row in chicago and the iconic philadelphia and. In addition to simple new minimalist 2nd floor house designs also create the impression of an elegant luxurious and modern. Jan 21 2020 explore ken johnson s board row house plans on pinterest.
RELATED ARTICLE :
House plan details plan code.View Video For Row House Design With Second Floor

View Video Review
Source : pinterest.com
