Manufacturing Shop Floor Layout Design
Olivia Luz

Kitchen Scrubbing Liquid Detergent Dispenser With Sponge Box Press-type Liquid Box Scouring Pad Dishwashing Soap Dispenser

Polished Chrome Red Copper Brass Swivel Spout Single Lever Handle Kitchen/Bar Bathroom Sink Faucet Hot&Cold Mixer Tap anf914

Drinking Water Kitchen Tap Commercial Solid Brass Single Hole Double Handle 3 Way Water Filter Round Swivel Spout Sink Mixer Tap
Although there are hundreds of hybrid design layouts they are all based on three basic layout concepts intended to meet the needs of specific types of manufacturing.
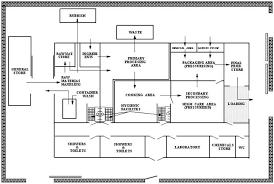
However when laying out a new plant changing the layout of an existing facility or adding a new assembly line many engineers underestimate how many factors to consider. The example factory layout floor plan shows manufacturing machines and equipment in the plant warehouse. Process layout design fixed position layout design and product layout design. In a showroom of cnc.
For this post however we only look at the layout and leave the details to other posts. A factory previously manufactory or manufacturing plant is an industrial site usually consisting of buildings and machinery or more commonly a complex having several buildings where workers manufacture goods or operate machines processing one product into another. Basic facility layouts for manufacturing. Smartdraw makes it easy.
Plant floor design is the key to an efficient production environment. Picture your plant here in two years. There are no standard or generic shop floor layouts. Shop floor is the production area of any manufacturing facility which is typically located separately from the main management office of that business.
RELATED ARTICLE :
A forum on the web the article in shop fabrication shop layout design shop management and laser waterjet plasma welding storage. Apr 12 2020 explore evi mythillou s board shop floor plans followed by 169 people on pinterest. Disadvantages of product or line layout. They only focus on equipment or material flow instead of designing factories around lean principles such as jidoka kaizen and kanban.You can design the line any way you want and then just build the building around it. See more ideas about store layout retail store design store design. The concentration of manufacturing activities and facilities at one place in continuous sequence and the higher output planned under the layout result in a smaller floor area per unit of product thus making the total floor area more productive. The fabrication shop industry expert and largest manufacturing technology out there.
The shop floor is responsible to produce an intermediate or a final product. If you have a greenfield location where you build a new plant you are in luck. These layouts are different for every manufacturing assembling or processing facilities. What are the conditions of your shop floor.
The shop floor may include equipment inventory and storage areas shop floor is the place where design specifications are referred machinery and manufacturing equipment are employed for production parts are assembled or some raw material is processed.
View Video For Manufacturing Shop Floor Layout Design

View Video Review
Source : pinterest.com
