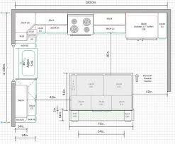
Kitchen Floor Plan Design
Olivia Luz

Waterfall Style Black Oil Rubbed Brass Single Hole / Handle Bathroom Vessel Basin Sink Faucet Hot Cold Mixer Tap anf155

Polished Chrome Brass Wall Mounted Double Ceramic Handles Levers Bathroom Kitchen Sink Faucet Mixer Tap Swivel Spout anf962

Antique Red Copper Wall Mounted Bathroom Tub Faucet Dual Ceramics Handles Telephone Style Hand Shower Clawfoot Tub Filler ana368
It s a case of using color in a strategic way to customize an open floor plan.
Cabinets and appliances are fixed on a single wall. Some floor plans even provide enough room for a second sink refrigerator or dishwasher. Welcome to the kitchen design layout series. Island kitchen floor plan.
46 kitchen plans and designs design. There is an extensive selection of designs colours and kitchen materials. You can increase the functionality of your kitchen by equipping the island with a cooktop or sink. Hi all i m currently under contract on a 1920s home which i am planning to do a kitchen renovation on prior to moving in.
Design ideas for a mid sized contemporary l shaped open plan kitchen in perth with concrete benchtops concrete floors with island grey floor an undermount sink flat panel cabinets light wood cabinets panelled appliances and grey benchtop. Design wood kitchens country kitchens modern design kitchens glossy kitchens or timeless classic kitchens the matching kitchen fronts are available in a variety of colours. Roomsketcher is an easy to use floor plan and home design app that you can use as a kitchen planner to design your kitchen. Library interior design includes designing for different age teams people who are there for research or analysis purposes and individuals who just want to relax with associates and skim the paper.
RELATED ARTICLE :
- when is ikea living room event 2019
- what are the best kitchen cabinet doors
- whats a po filler in a kitchen cabinet
Most modern designs also include an island which evolves the space into a sort of galley style with a walk through corridor. To create space for casual dining outfit the island with barstools for seating. Kitchen planning made easy. Islands tend to work best in l shaped kitchens that measure at least 10x10 feet and open to another area.
We d really like an island with stools get rid of existing island and we d like to add a pant. After entering the furniture you can design the kitchen design in your kitchen planning. Originally called the pullman kitchen the one wall kitchen layout is generally found in studio or loft spaces because it s the ultimate space saver. The kitchen is one again a part of the common social area but there s no island to act as a space divider.
View Video For Kitchen Floor Plan Design

View Video Review
Source : pinterest.com
