Ikea Kitchen Cabinet Planning
Olivia Luz

Newly High Quality 5 Warranty Promotion 100% Solid Brass Pump Head Kitchen Commercial Modern Lotion Dispenser In Brushed Nickel

8" ( inch ) Black Oil Rubbed Bronze Round Shape Bath Rainfall Shower head / Bathroom Accessory (Standard 1/2") ash049

Polished Chrome Red Copper Brass Swivel Spout Single Lever Handle Kitchen/Bar Bathroom Sink Faucet Hot&Cold Mixer Tap anf914
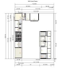
Space planning and the design of 1 room.
Draw it build it and get a full 3d view of your new space. You ll need a desktop computer but our 3d planner will allow you to finalise and price every detail of your kitchen design. Design explanation based on client feedback. Also switch easily between 3d and floor plan view.
Ikea cabinets are offered in standard sizes and can t be ordered in custom widths so you may need to use filler pieces if you have a few inches of leftover space in your kitchen. Using the ikea 3 d planning tool is great for moving cabinets around like puzzle pieces making everything fit as well as possible. Before your appointment you will need measurements of your existing kitchen and a completed kitchen planning checklist which you can access online after booking your appointment. When ikea introduced their sektion line they increased the depth of their wall cabinets to 15 so you get 3 of additional depth on each cabinet.
I believe it ll be useful for the next person planning an ikea kitchen purchase. Ikea home planner not compatible with mobile devices with the ikea home planner you can plan and design your kitchen or your office. I buy small cabinet faces of the different finishes that i m considering so that i can match them to the. You will get a 3d layout of your kitchen and a parts list to make ordering easier.
RELATED ARTICLE :
- spray painting kitchen cabinets calgary
- spanish style kitchen cabinet doors
- spruce up old wooden kitchen cabinets
At the ikea store you can discuss your design with one of our kitchen experts. Here the cabinets are finished in a glossy white that makes perfect sense but sarah has a suggestion on how to make sure you choose the best finish for your space. Print your complete product list and review. One on one up to 2 hour scheduled consultation with a kitchen planner.
Please note online kitchen planning service is only available between 9am 9pm. We also offer free plan verifications if you prefer to create a layout yourself using our ikea home planner tool. While i used the ikea metod kitchen which is in metric the ikea kitchen planner tips can be applied to the ikea sektion kitchen range. Ikea sektion wall cabinets are 15 deep standard american wall cabinets are 12 deep sometimes 13 if the door is inset set inside the face frame.
Remote kitchen planning services include.
View Video For Ikea Kitchen Cabinet Planning

View Video Review
Source : pinterest.com
