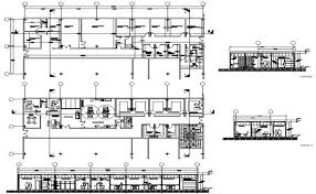
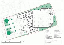
Floor Plan Mortuary Design Layout
Camila Farah

FOHEEL Kitchen Sink parts Kitchen Counter Top Stainless Steel Flush Recessed Swing Flap Lid Cover Trash Bin Garbage Can FKS49

Swivel Spout Water Tap Antique Red Copper Single Handle Single Hole Kitchen Sink & Bathroom Faucet Basin Mixer Tap anf408

7.7" inch Black Oil Rubbed Bronze Round Bath Rainfall Rain Bathroom Shower Head Bathroom Accessory (Standard 1/2") msh246
People also love these ideas.
Awesome funeral home floor plans you would like to develop home floor plans in a appealing way or whether you would like to get yourself a stylish building you ought to have to discover the latest suggestions. Funeral home floor plans inspirational design is one images from 23 dream floor plan ideas for new homes photo of home plans blueprints photos gallery. So instead of a blank screen you start with an existing house or facility outline and just move and extend walls add rooms and offices and move windows and doors to match your circumstances. You can use a floor plan to communicate your ideas more clearly as well as to show the potential of a layout.
See them in 3d or print to scale. Design your own floor plan online. Consequently preserving as the newest prospects accessible before you when you will try choosing the best strategies. Floor plans are an essential part of real estate marketing and home design home building interior design and architecture projects.
Building a floor plan from scratch can be intimidating. Memorial plan funeral home newsonair org from funeral home floor plan layout. Floor plans are useful to help design furniture layout wiring systems and much more. Add furniture to design interior of your home.
RELATED ARTICLE :
Please contact us if you think we are infringing copyright of your pictures using contact page. Funeral home floor plan layout delightful to my own website within this occasion i m going to explain to you with regards to funeral home floor plan layout now this is the primary image. Have your floor plan with you while shopping to check if there is enough room for a new furniture. This image has dimension 1024x721 pixel and file size 0 kb you can click the image above to see the large or full size photo.They re also a valuable tool for real estate agents and leasing companies in helping sell or rent out a space. See more ideas about egyptian temple ancient egyptian egyptian. Create detailed and precise floor plans. Aug 10 2018 the ancient egyptians build colossal temples to their gods and pharaohs.
We get our pictures from another websites search engines and other sources to use as an inspiration for you. It ll draw in others also when they visit your property. Choosing a house plan. While every house is different it may be easier to pick a template close to your final design and modify it.
View Video For Floor Plan Mortuary Design Layout

View Video Review
Source : pinterest.com
