Floor Plan Japanese Small House Design
Camila Farah

NEW Upgraded WiFi Smart RF433 Touch Switch 2/3 Way Smart Life/Tuya App Control,Alexa Google Home Voice Control EU US 1/2/3 Gang

Gold Color Brass Hand Held Shower Head Wall Holder Bracket 1.5M Hose Set Water Saving Bathroom Handheld Sprayer ahh046

Kitchen Wet Bar Bathroom Vessel Sink Faucet Black Oil Rubbed Bronze One Handle Swivel Spout Mixer Tap Single Hole msf098
Architects are increasingly finding inventive ways to squeeze homes into small spaces.
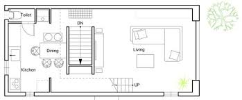
It is a traditional japanese house. Japanese house floor plan. Our small home plans feature outdoor living spaces open floor plans flexible spaces large windows and more. Php 2015015 small house plans bedrooms.
House plan details plan code. P1 936 000 p2 178 000 conservatively finished budget. It is usually built simply. The micro beach house.
See more ideas about japanese house japanese traditional traditional japanese house. Here are the floor plans of. Out of all small mobile house floor plans this one has a private master bedroom and two lofts. Minutes from the capital city s urban bustle an architect blends steel wood and concrete into a harmonious retreat for a family of five.
RELATED ARTICLE :
- the most popular kitchen cabinets 2017
- string lights decor living room
- sunny grey tavera marble floor design in pakistan
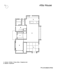
The estimated cost to build is around 15 20 000. P1 452 000 p1 694 000 semi finished budget. The construction in timber helps you to connect to nature. A modest light filled home in rural japan alts design office this unassuming house in shiga japan is home to a young family.
Here are the floor plans of 10. The smaller narrower rectangle in the japanese style room at the top of the floor plan indicates a small alcove not a tatami mat. Oct 13 2020 explore walter otto koenig photography s board japanese traditional floor plans followed by 117 people on pinterest. With their simplicity efficiency and understated beauty everything has a reason and a place to exist.
P2 904 000 p3 388 000. This gives a wondrous ancient japanese house ambiance. Budget friendly and easy to build small house plans home plans under 2 000 square feet have lots to offer when it comes to choosing a smart home design. Small japanese house floor plans.
RELATED ARTICLE :
Architects alts design office designed the 71 3 m2 768 ft2 floor plan around the combined living and dining room at the back of. The drummond house plans collection of scandinavian house plans and floor plans embrace being uncluttered and functionally focused on the practical aspects of everyday life. The exterior of this trailer home looks sort of boxy as if it was made by ikea. Scandinavian house plans scandinavian inspired floorplans.Tern island tiny house on trailer. P2 420 000 p2 662 000 elegantly finished budget.
View Video For Floor Plan Japanese Small House Design

View Video Review
Source : pinterest.com
