Floor Plan Design With Measurements
Olivia Luz

Antique Red Copper Brass Wall Mounted Bathroom Clawfoot Tub Faucet Mixer Tap Telephone Shower Head Dual Cross Handles ana325

MS Pot rack free perforated Kitchen fixture board cutting board storage rack stainless steel knife holder chopstick box Shelf

Single Hole Antique Brass Double Cross Handles Swivel Spout Kitchen Sink Bathroom Vessel Basin Faucet Mixer Tap anf246
Quickly measure rooms create floor plans with magicplan put down the tape measure and grab your iphone to measure the dimensions of the rooms in your house and put them together to form a floor.
The information from each image that we get including set of size and resolution. Floor plan with dimensions with roomsketcher it s easy to create a floor plan with dimensions. See them in 3d or print to scale. Have your floor plan with you while shopping to check if there is enough room for a new furniture.
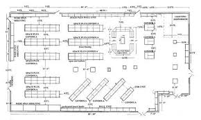
It may also include measurements furniture appliances or anything else necessary to the purpose of the plan. More detailed floor plans with dimensions include dimension strings to locate windows doors walls and other architectural elements. Inspiring high quality simple 2 story house plans 3 two from 2 story house floor plans with measurements. Floor plans are useful to help design furniture layout wiring systems and.
2 story house floor plans with measurements pleasant in order to my personal blog on this period i ll provide you with concerning 2 story house floor plans with measurements and from now on here is the 1st image. We have some best of galleries to add your collection we hope you can inspired with these artistic galleries. Dimension strings are drawn parallel to the element with 45º hash marks at each end of the dimension string indicating where the measurement starts and ends. A floor plan is a scaled diagram of a room or building viewed from above.
RELATED ARTICLE :
- rustic floor ideas minecraft
- rta kitchen cabinet and bathroom vanity store
- rta kitchen cabinets northridge ca
Determine the level of accuracy required if you re a real estate agent or appraiser and your floor plan drawing is simply to measure the approximate size of the building and show the general interior layout you don t need to be overly accurate. The floor plan may depict an entire building one floor of a building or a single room. Measuring within the nearest 1 4 or even 1 2 foot of outside walls is probably sufficient. You can click the picture to see the large or full size image.
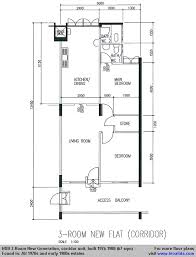
If the house has more than one storey your floor plan will feature clearly labelled diagrams showing each separate storey.
View Video For Floor Plan Design With Measurements

View Video Review
Source : pinterest.com
