Bathroom Floor Plan Design Tool
Olivia Luz

1 PCS 12v Capacitive Touch Touch Switch Keypad Module Tap Latching Available with Relay TTP223 Module

Antique Red Copper Brass Single Ceramic Handle Bathroom Kitchen Basin Sink Faucet Mixer Tap Swivel Spout Deck Mounted mnf137

2Pcs New Gold Color Brass & Black Oil Rubbed Bathroom Angle Stop Valve 1/2" Male x 1/2" Male Thread Bathroom Accessory mav017
Instead of a blank design you may start with an existing floor plan template and customize it to suit your.
Create bathroom plans with smartdraw s bathroom designer tool smartdraw is the easiest way to design a bathroom. Use our easy to use bathroom floor plan tool to visualize your bathroom. Our free 3d bathroom planner is an easy and virtual way for you to turn your visions into reality and there are no limits to your creativity. A floor plan is very important when you are home redecorating a 3d rendering is the closest realistic view of the plan except for the construction itself and in this way you can share your ideas with your.
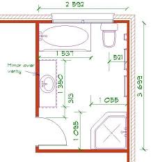
Use it on any device with an internet connection to enjoy a full set of features symbols and high quality output. Put your new bath or washbasin wherever you want in just a few steps. Floor plan design program. This bathroom plan can accommodate a single or double sink a full size tub or large shower and a full height linen cabinet or storage closet and it still manages to create a private corner for the toilet.
Bathroom planning made easy. Create your bathroom design using the. Become the best interior designer with the help of our bathroom planner. Plan your bathroom design with our online bathroom planner a tastefully planned bathroom is like a personal oasis of well being in your own home a place to retreat to relax and to regenerate.
RELATED ARTICLE :
- nilkamal plastic living room chair
- open kitchen and living room design ideas
- open kitchen cabinet shelving peninsula
Make your dream room a reality. Drag fixtures and finishes to the floorplan and see the effect keep the items properly positioned with alignment guide output and share your plan as images or pdf. The picture below is a bathroom layout drawn via bathroom floor planner. This is one space in the home where you definitely don t want to wing it space is at a premium for most bathrooms and proper planning should allow you to create a space that s efficient but also allows for some useful and attractive extras.
2d floor plan drawing software. Planningwiz has a special section of bathroom items which can be used to create interactive floor plans in order to get a better sense of how you would like your bathroom to look like. The spruce theresa chiechi more floor space in a bathroom remodel gives you more design options.
View Video For Bathroom Floor Plan Design Tool

View Video Review
Source : pinterest.com
