2 Storey House Design With Roof Deck Floor Plan
Olivia Luz

Antique Red Copper Brass Deck 5 Holes Bathtub Mixer Faucet Handheld Shower Widespread Bathroom Faucet Set Basin Water Tap atf215

Antique brass White Lever Wall Mounted Mop Water Tap Garden Washing Machine Copper Faucet aav105

WiFi RF Smart Curtain Module Switch for Electric Roller Shutter Motor Tuya Wireless Remote Control Work with Alexa Google Home
Most people like to hire professional architects to design their home but they still find it tricky to communicate their thoughts properly.
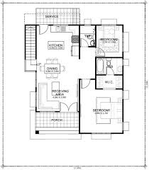
We like them maybe you were too. The strengths of modern flat roof house plans. Elevated in 3 steps a goo way to welcome guests is the covered porch with the whole width of the house intended for sitout for relaxation while outside and standing by at the front. Juliet model is a 2 story house with roof deck that can fit a lot with a total area of 250 square meters.
Above all the major benefit is being simple in construction process. Hi guys do you looking for 3 story house with rooftop deck. Australian 2 level house plans home designs see our extensive range variety and styles that are great value get inspired make your choice and start building your new home today. Get along with the benefits of flat roof design.
Maintaining at least 2 meters on both side as setback a 12 5 m lot with would be perfect to fit this design. All our 2 level floor plans can be easily modified. Call 1 800 913 2350 for expert support. Many time we need to make a collection about some pictures for your need we hope you can inspired with these inspiring photos.
RELATED ARTICLE :
See more ideas about two storey house plans two storey house house plans. If you too are facing a similar situation and are looking for a beautiful two storey house design then here is a complete layout with floor plans that is definitely worth considering. Affordable two y house bedrooms and wide roof deck plan designs roofdeck 2 design with 4 like this ideas impressive three bedroom modern four one plans 89634juliet 2 story house with roof deck pinoy eplansmontemayor four bedroom fire walled two story house design with roof deck pinoy designsprosperito single attached two story house design with roof deck mhd read more. May 27 2020 explore amazing house concepts s board two storey house plans followed by 6391 people on pinterest.If you think this is a useful collection let s hit like share button so more people can inspired too. This beautiful single floor house with roof deck can be constructed in a lot having a total lot area of 111 square meters. The best 2 story house plans. They focus on the importance of flat roof which is their selling theme.
This floor plan is the modified version of mhd 2015020 and mhd 2014010. Find 3 bedroom 2 storey designs with basement nice cheap two floor blueprints more. This is designed for narrow lot with 10 m frontage width making one side firewall ensuring at least 2 meter setback on the opposite side.
View Video For 2 Storey House Design With Roof Deck Floor Plan

View Video Review
Source : pinterest.com
